Provent Alpha 550 Compact приточно-вытяжная установка с роторным рекуператором.
Минимальная высота занижения потолков при подвесном способе монтажа. Компактные и тихие. Идеально подходят для расположения под потолком в помещениях небольшой площади: кладовых, гардеробах, бойлерных. Не требуют отвода конденсата. Возможна установка на балконах, лоджиях и чердаках.
Высокоэффективный роторный рекуператор
Матрица ротора увеличенного размера дает повышенную энергоэффективность (коэффициент рекуперации до 84% при номинальном расходе воздуха в зависимости от модели). Гигиеничный коррозионостойкий алюминиевый сплав 3003 обеспечивает долгий срок службы. Прямой зубчатый привод ротора на виброподвесе гарантирует точное позиционирование рекуператора, исключает вибрации, растяжение и износ ремня, необходимость его замены.
Запатентованная конструкция тройного уплотнителя ротора обеспечивает герметичное разделение приточного и вытяжного потоков; секция продувки исключает подмес вытяжного воздуха в приточный на 99%
Современные EC вентиляторы
Двигатели с электронным управлением обеспечивают высочайшую производительность при минимальном потреблении энергии. Малошумные вентиляторы позволяют создать действительно тихие вентустановки.
Основные характеристики
| Максимальная производительность | 550 м3/ч |
| Тип рекуператора | Роторный |
| Привод ротора | Прямой зубчатый |
| Коэффициент рекуперации | 77,7% |
| Встроенный электрический нагреватель | 1 кВт |
| Вентиляторы | Высокоэффективные EC |
| Пульт | Цветной сенсорный 4″ (в комплекте) |
| Подключение к умному дому | Modbus RTU |
| Летний режим (пассивное охлаждение) | Есть |
| Система постоянного расхода воздуха CAV | Есть |
| Гарантия производителя | 2 года |
Эксплуатационные характеристики
| Толщина изоляции | до 50 мм |
| Фильтры | Кассетный F5 |
| Модель фильтра | FC 550/F5 |
| Уровень звукового давления | 34 дБ(А) |
| Минимальная температура уличного воздуха | -35С |
Электрическое подключение
| Напряжение сети | 230 В (50 Гц) |
| Максимальная мощность | 1,34 кВт |
| Максимальная сила тока | 7,04 А |
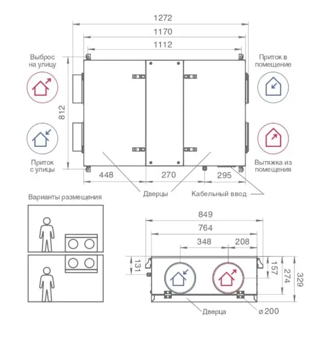
Габаритные характеристики
| Тип установки | Горизонтальная |
| Способ монтажа установки | Подвесная потолочная/напольная дверцей вверх |
| Подключение воздуховодов | d200 мм |
| Вес установки | 72 кг |
| Габаритные размеры | 1170x764x329 мм |
*Сайт не является интернет-магазином! Стоимость указана ориентировочная, нужно уточнять по наличию. Также можем сделать, привезти под заказ.






















